2坪ハウス メタリックブラック
902,000円(税込み)〜
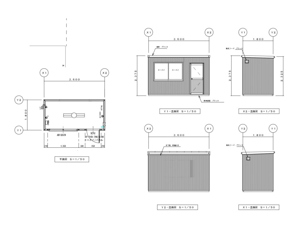
- 広さ
- 6.6㎡(2坪)
- 寸法外寸
- 幅3,600㎜×奥行1,800㎜×高さ2,400㎜
- 注意事項
-
・設置、配送エリアについては島根県・鳥取県エリアまでとなりますので予めご了承ください。
・給排水工事、一次側電気工事、レッカー代(ユニック車横付不可時)、基礎工事・確認申請費、出戻り時費用、その他見積外工事は別途工事となります。
※設置場所が狭く、搬入経路の確保ができない(4tユニック車が入れない、電線や上空に障害物がある)、地盤が軟弱で地盤改良が必要な場合はそのままの設置が困難なことがございます。判断ができない場合は現地調査(無料)にて当社スタッフがお調べ致しますのでお気軽にお問い合わせください。
※風の強い地域の場合は、風養生をお願いさせていただく場合がございます。
